!<-- -->

Neubau Siel, Neufeld

Auftraggeber:
Land Schleswig-Holstein (Auftragsverwaltung: Amt für ländliche Räume, Husum)

Zeitraum:
(1996) 1999-2004

Leistungsumfang:

  • Vorentwurf
  • Entwurfsplanung
  • Ausschreibungsunterlagen
  • Mitwirkung bei der Vergabe
  • Ausführungsunterlagen

Bausumme:
3.500.000 €

Technische Beschreibung:

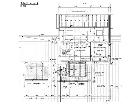
Neubau eines 70 m langen Deichsiels in Stahlbetonbauweise mit parallel laufender Notentwässerungsleitung im Zuge der Küstenschutzmaßnahme „Neufeld und Neufelderkoog“

  • Einzugsgebiet: 10 km² (Gebiete des Sielverbands Neufeld), Entwässerung in den Neufelder Hafen
  • Sielquerschnitt: einzelliger, biegesteifer Rahmen in Stahlbetonbauweise, aufwendige Tiefgründung in direkter Ortslage; Erstellung des Bauwerks in geschlossener Baugrube

Der Bau der neuen Sielkammer parallel zum vorhandenen Siel (Abstand 8 m) unter aufrechtzuerhaltendem Betrieb und die die Sielkammern querende Landesstraße erforderte eine detaillierte Bauphasenplanung.