!<-- -->
Neubau Siel, Neufeld

Neubau Siel, Neufeld

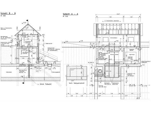
Neubau Siel, Neufeld Auftraggeber:Land Schleswig-Holstein (Auftragsverwaltung: Amt für ländliche Räume, Husum) Zeitraum:(1996) 1999-2004 Leistungsumfang: Vorentwurf Entwurfsplanung Ausschreibungsunterlagen Mitwirkung bei der Vergabe Ausführungsunterlagen...